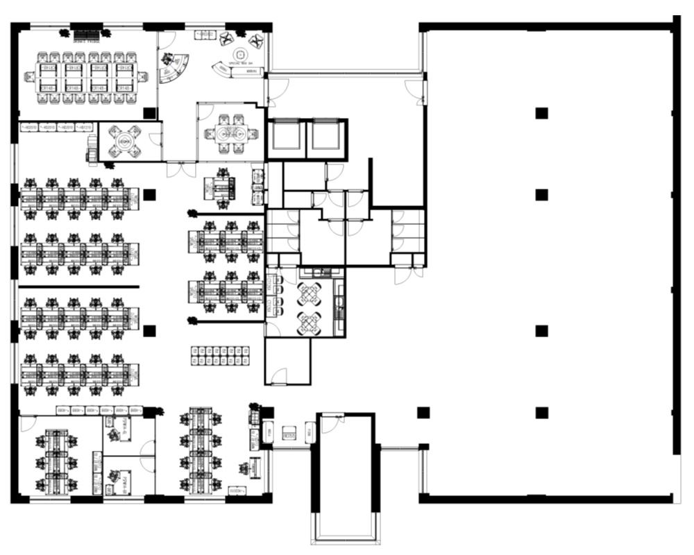
Exeter - Financial
A local legal and financial services firm called upon our expertise to space plan new offices they have acquired following a 20% year on year expansion.
Their brief was to accommodate 70+ members of staff in an open plan office, create individual offices for management, client meeting rooms, a boardroom using modular tables so the room could have multipurpose usage, a canteen/breakout area plus a reception area for visitors.
Our iBench range with goal post legs was introduced, desk end storage with sliding doors and lockers for personal storage. We incorporated the companies corporate colour scheme in the perspex desk top screens and fabrics on the soft seating.


