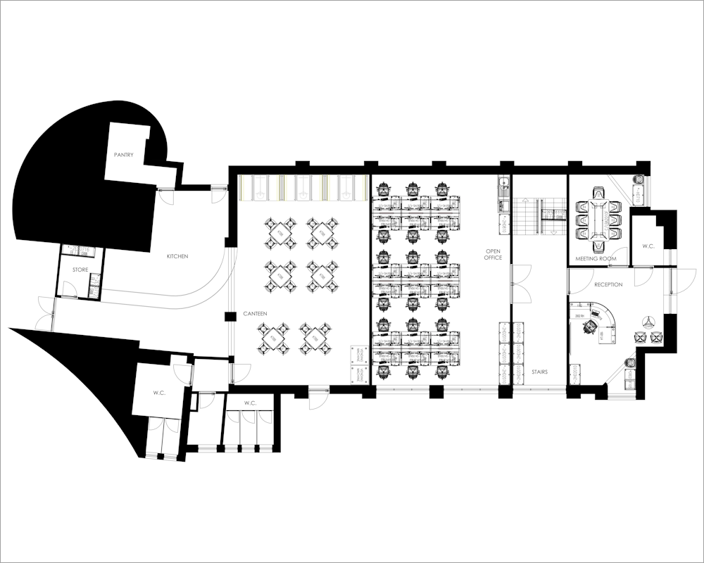
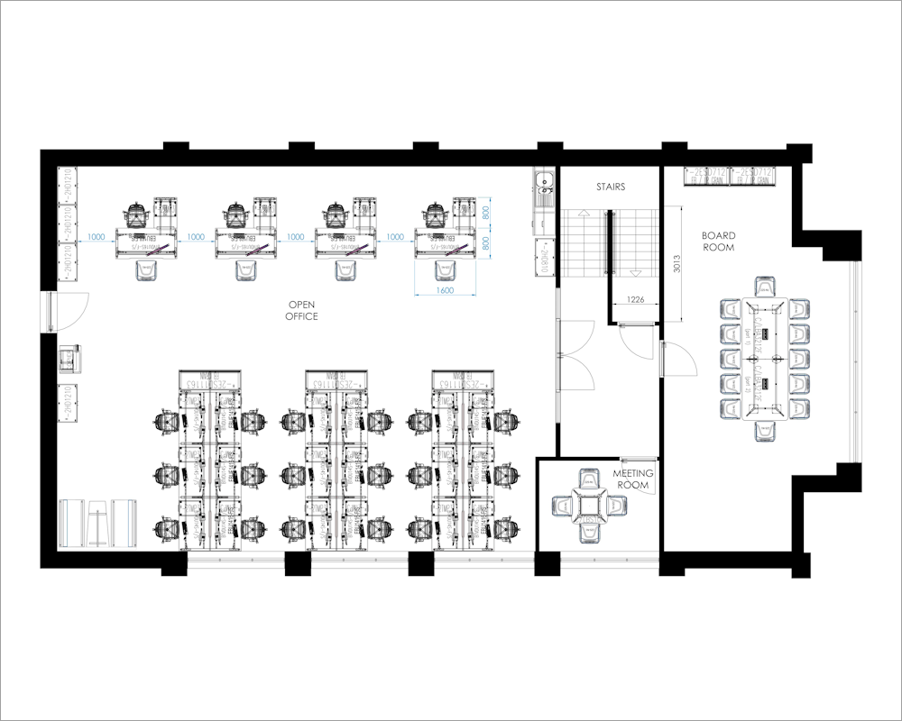
Crediton - Food Processing
One of the UK’s leading dairy drinks businesses contacted us once plans had been approved to convert the towns old cinema into a new on-site head office and reception.
The project brief was to accommodate 40 team members over two floors, create a welcoming reception area, provide furniture for a working 24 hour canteen and a number of meeting rooms.
It was evident in the early planning stages that the natural texture of our Evolution oak finish provided the design aesthetic our client was looking for. They selected white desktops out of 18 board finishes and oak tapered leg design (that also comes in 21 RAL painted options).
Click here to view our Evolution furniture range.


