Crediton - Galvanizers
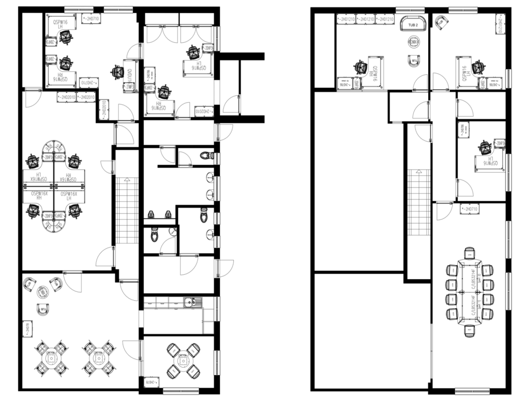
A local galvanising business redeveloped a former garage into offices for themselves and called upon our expertise to Space Plan the building.
Their brief was to accommodate 4 members of staff in an open plan office, create individual offices for management, provide a small meeting facility, a boardroom, plus a canteen/breakout area for staff to relax and unwind.
They decided that our Sirius Range in a Nebraska Oak wood finish with black metal work suited their corporate colour scheme and was complimented by lime green desktop screens.
Click here to view our Sirius and Odyssey range.


